Помещение на трафике
| Населенный пункт | Тюмень |
|---|---|
| Район города | Ленинский |
| Улица | улица Тульская |
| Номер дома | 8 |
Описание
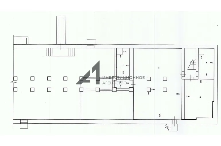
Сдам в аренду помещения площадью 200 кв.м. на -1 этаже.
Без комиссии для арендатора
Основные характеристики и преимущества;
- отличная локация, первая линия ул. Тульская;
- большой трафик автомобилей;
- цокольный этаж;
- высота потолков более 2,4 м;
- два входа;
- есть система вентиляции, санузел;
- ставка аренды всего 400 руб за кв.м.
Готовы ответить на Ваши вопросы. До встречи на показе.
Подписывайтесь на наш аккаунт и получайте новости о новых объектах и изменении цен!
Возможно, вы искали:
Готовый арендный бизнес, ГАБ, ПСН, помещения свободного назначения, коммерческая недвижимость, коммерческое помещение, торговая недвижимость, продажа нежилого помещения, купить торговую площадь, помещение под торговлю, купить коммерческую недвижимость в Тюмени, продажа коммерческой недвижимости в Тюмени, купить нежилое помещение в Тюмени, инвестиции в недвижимость, вложения в недвижимость, ипотека на коммерческую недвижимость
Продажа готового арендного бизнеса, продажа коммерческой недвижимости и помещений свободного назначения: как выгодно продать и инвестировать.
Узнайте, как правильно продать коммерческое помещение или торговую недвижимость, включая нежилые помещения в Тюмени. Получите советы по продаже и вложению в объекты недвижимости, чтобы максимизировать прибыль. Оценка инвестиционных возможностей и использование ипотеки для эффективных финансовых решений при продаже объектов недвижимости.
_______________________________________
Инвестиционное агентство "Главная улица"
| Сведения о недвижимости | |
|---|---|
| ID | 5354 |
| Коммунальные услуги включены | Нет |
| Тип здания | Административное здание |
| Тип парковки | На улице |
| Отделка помещения коммерческая | Офисная |
| Виды отопления avito | Центральное |
| Тип коммерческой | Торговое помещение |
| Площадь, кв.м. | 200 |
| Этаж | -1 |
| Этажность | 5 |
| Стоимость | 80 000 руб. |







