Здание в историческом центре
| Населенный пункт | Тюмень |
|---|---|
| Улица | улица Комсомольская |
| Номер дома | 6 |
Описание
Сдам в аренду отдельно стоящее нежилое здание - памятник архитектуры Дом С.Г. Селеверстова – Л.Х. Брандта.
Отличная локация в историческом центре города рядом с улицей Дзержинского.
БЕЗ КОМИССИИ ДЛЯ АРЕНДАТОРА
Основные характеристики и преимущества:
- центральная часть города, перекресток улиц Комсомольская и Первомайская;
- очень большой автомобильный и пешеходный поток;
- объект культурного наследия;
- подготовлен проект реконструкции для размещения заведения общественного питания;
- на текущем этапе есть возможность согласовать ремонт под свои потребности;
- проводится увеличение мощности до 146 кВт;
- есть своя территория;
- можно использовать под офис, предоставление услуг, мед центр и прочее.
Дом представляет ценность как уникальный в архитектурно-планировочном и декоративно-художественном отношениях образец деревянной архитектуры г. Тюмени, примечательный объемной композицией и резным декором фасада в технике объемно - пластической накладной резьбы. Характеризует тюменскую школу деревянной резьбы. Строением владели купец 2-й гильдии, тюменский судовладелец Стефан Григорьевич Селиверстов и представитель тюменского еврейского клана Брандтов, а также купец Лейба Хаимович Брандт. Построен в 1905 г.
Готовы ответить на Ваши вопросы. До встречи на показе.
Подписывайтесь на наш аккаунт и получайте новости о новых объектах и изменении цен!
_______________________________________
Инвестиционное агентство "Главная улица"
| Сведения о недвижимости | |
|---|---|
| ID | 6130 |
| Коммунальные услуги включены | Нет |
| Тип здания | Жилой дом |
| Тип парковки | На улице |
| Отделка помещения коммерческая | Чистовая |
| Виды отопления avito | Центральное |
| Тип коммерческой | Офисное помещение, Здание, Медицинский центр, общепит |
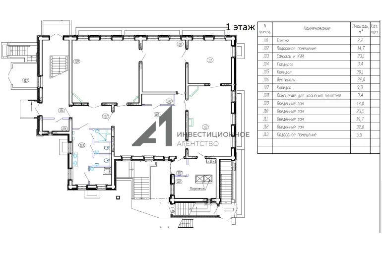
| Площадь, кв.м. | 745.3 |
| Этаж | 1 |
| Этажность | 3 |
| Стоимость | 1 490 600 руб. |















