Стильный Хостел, 180кв.м.
| Населенный пункт | Тюмень |
|---|---|
| Улица | улица Николая Федорова |
| Номер дома | 16 |
Описание
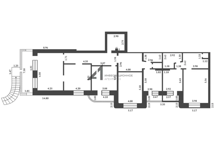
Продается офисное помещение общей площадью 180 кв.м.
Без комиссии для покупателя
Основные характеристики и преимущества:
- первая линия ул. Николая Фёдорова, прямо напротив ЖК "Green House";
- находится напротив сквера "Берёзовая роща";
- номерной фонд 6 комнат;
- отдельный вход;
- выполнен современный ремонт с использованием высококачественных материалов;
- электрические мощности 20 кВт;
- доступ 24/7;
- установлена охранная сигнализация и видеонаблюдение;
- помещение в собственности, документы проверены и готовы к продаже, быстрая сделка;
- объект может использоваться под свой бизнес или сдачу в аренду;
- готовы ответить на Ваши вопросы, до встречи на показе.
Подпишитесь на наш аккаунт на Авито, чтобы быть в курсе скидок и акций
Возможно, вы искали:Готовый арендный бизнес, ГАБ, ПСН, помещения свободного назначения, коммерческая недвижимость, коммерческое помещение, торговая недвижимость, продажа нежилого помещения, купить торговую площадь, помещение под торговлю, купить коммерческую недвижимость в Тюмени, продажа коммерческой недвижимости в Тюмени, купить нежилое помещение в Тюмени, инвестиции в недвижимость, вложения в недвижимость, ипотека на коммерческую недвижимость
Продажа готового арендного бизнеса, продажа коммерческой недвижимости и помещений свободного назначения: как выгодно продать и инвестировать.
Узнайте, как правильно продать коммерческое помещение или торговую недвижимость, включая нежилые помещения в Тюмени. Получите советы по продаже и вложению в объекты недвижимости, чтобы максимизировать прибыль. Оценка инвестиционных возможностей и использование ипотеки для эффективных финансовых решений при продаже объектов недвижимости.______________
Инвестиционное агентство "Главная улица"
| Сведения о недвижимости | |
|---|---|
| ID | 5887 |
| Тип здания | Жилой дом |
| Тип парковки | На улице |
| Отделка помещения коммерческая | Чистовая |
| Тип коммерческой | Гостиница, Офисное помещение |
| Площадь, кв.м. | 180 |
| Этаж | 1 |
| Этажность | 5 |
| Стоимость | 18 500 000 руб. |






