Продажа на первой линии ул. Республики
| Населенный пункт | Тюмень |
|---|---|
| Улица | улица Республики |
| Номер дома | 215А |
Описание
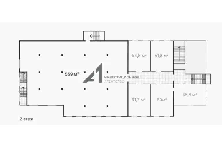
Продам помещение на 2 этаже общей площадью 50 м² на первой линии ул. Республики
БЕЗ КОМИССИИ ДЛЯ ПОКУПАТЕЛЯ
Основные характеристики и преимущества:
Арендатор — мебельный магазин
- Высокие потолки
- Свежий ремонт
- Общая парковка у здания (83 места)
- Коммунальные платежи арендатор оплачивает отдельно
- Густонаселенный район
- Рядом школа и детский сад
- В радиусе 300 м — 3154 квартиры
- Соседи: Сбербанк, Пятерочка, Ермолино, Светлое&Темное, Fix Price, Ozon
Подписывайтесь на наш аккаунт и получайте новости о новых объектах и изменении цен!
________________________________________
Инвестиционное агентство «Главная улица»
| Сведения о недвижимости | |
|---|---|
| ID | 5038 |
| Тип коммерческой | Готовый бизнес |
| Площадь, кв.м. | 50 |
| Этаж | 2 |
| Стоимость | 4 500 000 руб. |


