Помещение в ЖК от Брусники
| Населенный пункт | Тюмень |
|---|---|
| Район города | Калининский |
| Улица | улица Тимирязева |
| Номер дома | 8к1 |
Описание
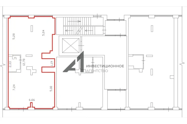
Предлагаем снять новое помещение на первой линии ул. Тимирязева, общая площадь: 79.1 кв.м.
В работе есть несколько помещений в этом ЖК.
Без комиссии для арендатора
Основные характеристики и преимущества:
- ЖК комфорт класса;
- удобные подъездные пути;
- полное юридическое сопровождение сделки;
- первая линия;
- арендные каникулы на ремонт;
- витражное остекление;
- 15 кВт с возможностью увеличения;
- КУ по счетчикам.
Стоимость аренды:
- 1-3 месяц- 800р./кв.м.
- 4-6 месяц- 1000р./кв.м.
- 7-9 месяц- 1200р./кв.м.
- 10 месяц и позднее- 1500р./кв.м.
Ждем Ваших обращений, для уточнения оставшихся вопросов.
С удовольствием и знанием дела поможем Вам в выборе Объекта!
________________________________________
Инвестиционное агентство "Главная улица"
| Сведения о недвижимости | |
|---|---|
| ID | 5771 |
| Коммунальные услуги включены | Нет |
| Тип здания | Жилой дом |
| Тип парковки | На улице |
| Отделка помещения коммерческая | Без отделки |
| Тип коммерческой | Торговое помещение |
| Площадь, кв.м. | 79.1 |
| Этаж | 1 |
| Стоимость | 120 000 руб. |









