Аренда, торговое, на трафике
| Населенный пункт | Тюмень |
|---|---|
| Улица | улица Червишевский тракт |
| Номер дома | 66 |
Описание
Аренда помещения на первой линии Червишевского тракта.
БЕЗ КОМИССИИ ДЛЯ АРЕНДАТОРОВ
Основные характеристики и преимущества:
- первая линия Червишевского тракта;
- район города с высокой плотностью населения;
- хорошая транспортная доступность;
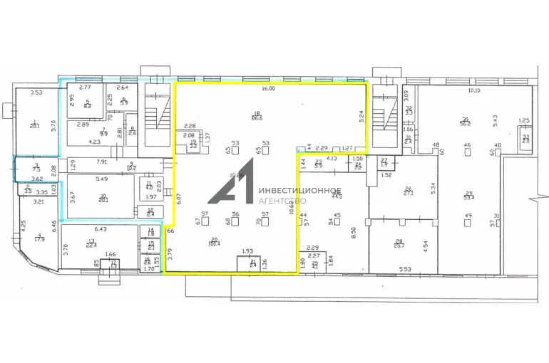
- общая площадь помещений - 192,6 кв.м;
- возможно деление площади;
- отдельный вход с фасада, доступ 24/7;
- большое место для вывески;
- наличие мокрых точек;
- парковка перед зданием.
Готовы ответить на Ваши вопросы, до встречи на показе.
Подписывайтесь на наш аккаунт и получайте новости о новых объектах и изменении цен!
Возможно, вы искали:
Готовый арендный бизнес, ГАБ, ПСН, помещения свободного назначения, коммерческая недвижимость, коммерческое помещение, торговая недвижимость, продажа нежилого помещения, купить торговую площадь, помещение под торговлю, купить коммерческую недвижимость в Тюмени, продажа коммерческой недвижимости в Тюмени, купить нежилое помещение в Тюмени, инвестиции в недвижимость, вложения в недвижимость, ипотека на коммерческую недвижимость
Продажа готового арендного бизнеса, продажа коммерческой недвижимости и помещений свободного назначения: как выгодно продать и инвестировать.
Узнайте, как правильно продать коммерческое помещение или торговую недвижимость, включая нежилые помещения в Тюмени. Получите советы по продаже и вложению в объекты недвижимости, чтобы максимизировать прибыль. Оценка инвестиционных возможностей и использование ипотеки для эффективных финансовых решений при продаже объектов недвижимости.
_______________________________________
Инвестиционное агентство "Главная улица"
| Сведения о недвижимости | |
|---|---|
| ID | 4550 |
| Коммунальные услуги включены | Нет |
| Тип здания | Жилой дом |
| Тип парковки | На улице |
| Отделка помещения коммерческая | Офисная |
| Тип коммерческой | Торговое помещение |
| Площадь, кв.м. | 192.6 |
| Этаж | 1 |
| Этажность | 1 |
| Стоимость | 770 400 руб. |








