АРЕНДА СКЛАДА 1300 кв
| Населенный пункт | Тюмень |
|---|---|
| Район города | Ленинский |
| Улица | улица Республики |
| Номер дома | 252 стр49 |
Описание
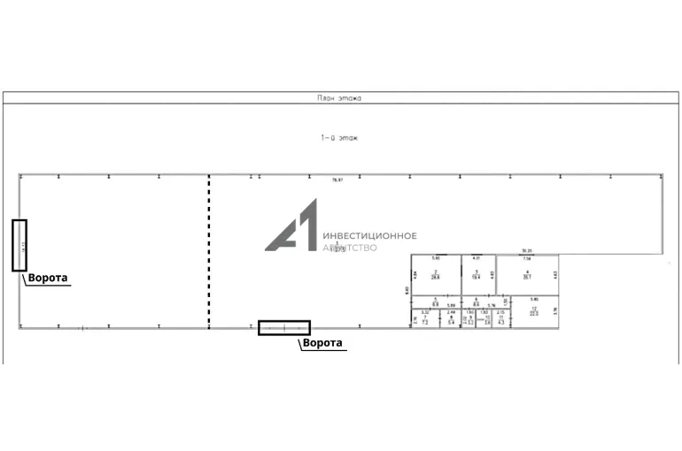
Сдается в аренду теплый склад 1273.7 кв м ,можно разделить на два помещения с двумя автономными въездами. на Республике 252. Беспылевой пол, ворота 4 метра высота ширина 3 м),Высота склада до фермы 7.4 метра, есть прилегающая территория, парковка, асфальт до склада,
| Сведения о недвижимости | |
|---|---|
| ID | 6364 |
| Коммунальные услуги включены | Да |
| Возможное назначение | База |
| Тип здания | отдельно стоящее здание |
| Тип парковки | На улице |
| Отделка помещения коммерческая | Чистовая |
| Удаленность от дороги (авито) | Вторая линия и дальше |
| Мощность электросети, в кВт | 300 |
| Мультимедиа - avito | Wi-Fi |
| Минимальный срок сдачи, мес. | 6 |
| Арендные каникулы | Нет |
| Возможная нарезка - Площадь дополнительно | Нет |
| Виды отопления avito | Центральное |
| Отопление - коммерческая avito | Центральное |
| Тип коммерческой | Складское помещение |
| Площадь, кв.м. | 1273.7 |
| Этаж | 1 |
| Этажность | 1 |
| Стоимость | 1 082 645 руб. |














