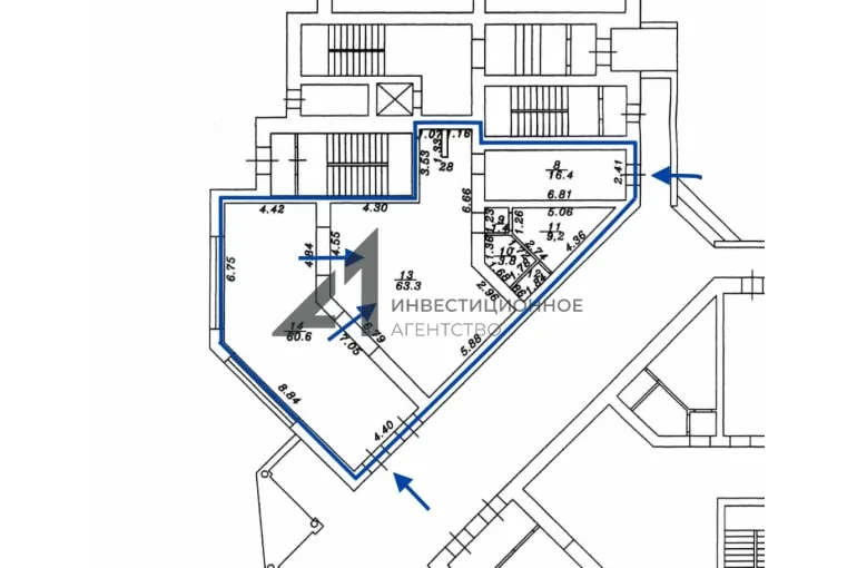
АРЕНДА. Центр 1 этаж. 156 кв.м.
| Населенный пункт | Тюмень |
|---|---|
| Улица | улица Сургутская |
| Номер дома | 11/4 |
Описание
Предлагаем Вашему вниманию в аренду коммерческую площадь 156 кв.м.
БЕЗ КОМИССИИ ДЛЯ АРЕНДАТОРА
Основные характеристики и преимущества помещения:
- первая линия с хорошим автомобильным и пешим трафиком;
- первый этаж с большими окнами;
- 2 входа: центральный и запасной вход со двора.
- наличие парковочных мест;
- хороший, светлый, чистый ремонт;
- 2 больших кабинета;
- просматриваемое место для информационной вывески;
Готовы ответить на Ваши вопросы. До встречи на показе.
Подписывайтесь на наш аккаунт и получайте новости о новых объектах и изменении цен!
________________________________________
Инвестиционное агентство "Главная улица"
| Сведения о недвижимости | |
|---|---|
| ID | 5756 |
| Коммунальные услуги включены | Нет |
| Возможное назначение | Офис |
| Тип здания | Жилой дом |
| Тип парковки | На улице |
| Отделка помещения коммерческая | Чистовая |
| Удаленность от дороги (авито) | Первая линия |
| Мощность электросети, в кВт | 15 |
| Минимальный срок сдачи, мес. | 11 |
| Арендные каникулы | Есть |
| Возможная нарезка - Площадь дополнительно | Нет |
| Виды отопления avito | Центральное |
| Отопление - коммерческая avito | Центральное |
| Тип коммерческой | Офисное помещение, Помещение свободного назначения, Торговое помещение, Помещения свободного назначения, Медицинский центр |
| Площадь, кв.м. | 156.3 |
| Этаж | 1 |
| Этажность | 8 |
| Стоимость | 132 855 руб. |











